Класс ЖК
Бизнес
Жилой комплекс «Sanara» — современное и комфортное жилье бизнес-класса
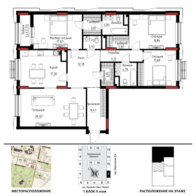
Жилой комплекс сочетающий в себе качественные строительные решения и удобную инфраструктуру. Гармония дизайна, качества и удобства Комплекс состоит из 17 блоков разной этажности (8, 9, 12 этажей) различной планировки.
Преимущества жилого комплекса
Безопасность жилого комплекса
Подробнее с жилым комплексом «SANARA» можно ознакомиться по этой ссылке: sanara-sensata.kz
Дом расположен в районе «Есиль», пересечение пр. Мәңгілік Ел и ул. Хусейн бен Талал 9/3
